A property that makes a Big statement
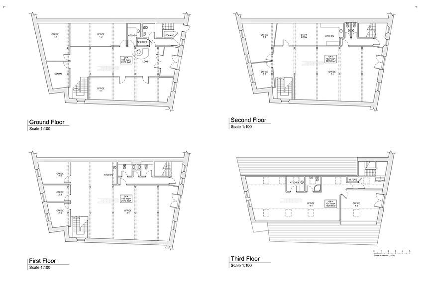
Stunning 7000Sqft newly refurbished building in the heart of Leith close to Fishers restaurant and Malmaison near Leith docks, 2 miles to the northeast of Edinburgh city center. Timberbush is a cobbled Cul de Sac off Bernard Street with limited free parking. The property is stunning architecturally with double glazed period windows, exposed oak beams and cast-iron pillars on the ground and first floors.
A Special Workplace
51 Timberbush is available for the first time in 20 years after its time as home to one of the most successful advertising companies in Scotland.
Creating Big Impact
The entire building has had a full refurbishment including all new LED “ work & play” lighting, sanded solid oak flooring, new kitchens, toilets/WC’s and shower room, state of the art security system including tag entry system & cloud-based video surveillance, Cat 5&6 Cabling throughout to a large dedicated air-conditioned secure server room. Dedicated intercom to the top floor unit












